
Проект Усадьба Монс можно рассматривать, скорее, как загородную резиденцию для приёмов с опцией мини-гостиницы, или вообще, как гостиницу. Этот проект рассчитан для строительства на разноуровневом участке, так как он идеально вписывается в подобный рельеф. Наличие рядом водоёма сделает этот особняк ещё более привлекательным. По архитектуре это скорее шале с элементами фахверка, так как отделка здания предполагает максимальное применение натуральных материалов – природного камня и дерева. Из дерева выполнены все колонны с подпорками, обрешётка фронтонов и ограждения террас и балконов. Грандиозные размеры усадьбы поражают воображение – площадь танцевального зала в цоколе гостиной превышает 100 кв. м, а террасы 1 этажа занимают в сумме почти 200 кв. м! Светлые оттенки коричневого цвета, преобладающие в оформлении экстерьера, создают вполне пасторальное настроение и подчёркивают единение с природой.
Главные амбассадоры цокольного этажа – очень большая кухня нестрогой формы (часть которой вполне может быть отведена и под локальную столовую) и просторнейший прямоугольный танцевальный зал (или зал для балов – зависит от концепции владельца). Кроме того, здесь есть также прихожая, небольшой холл, ванная, санузел и тех. помещение. Гараж на два автомобиля, разумеется, тоже в цоколе.
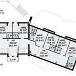
C крыльца 1 этажа постояльцы, минуя тамбур, попадают в холл. Налево – ресепшен, направо – лестница на 2 этаж. Прямо из холла – вход в ресторан или гостиную. Оттуда можно выйти на большую крытую террасу. Правое крыло предназначено для сна, тут расположены 6 спальных комнат, в каждой из которых предусмотрены ванная и санузел. Одна спальня имеет выход на личный балкон, ещё из четырёх можно попасть на грандиозную открытую террасу, опоясывающую две стороны здания.
Второй этаж является функциональным продолжением первого – и здесь расположены 6 спальных комнат, снабжённых гигиеническим удобствами. Из двух спален левого крыла есть выход на открытую угловую террасу площадью более 100 кв. м. На территории обеих крыльев этажа есть холл. Из того, что в левом крыле – выход на небольшой балкон.
Усадьба Монс – не важно, сколько гостей. Важно, что каждый будет принят по-царски!

Гарантия 10 лет
На все работы действует гарантия. Вы полностью застрахованы.

Расчет ваших проектов
Рассчитаем стоимость строительства по эскизам. Составление сметы — БЕСПЛАТНО!

Большая база домов
У нас вы можете заказать проект дома, который будет разработан «под Вас» — БЕСПЛАТНО.

Отчётность
Полная финансовая отчётность. Вы можете в любой момент запросить отчётность о проводимых работах.

Проект Вашего дома в 3D
Прогуляйтесь по своему дому до начала строительства. Фасады и планировки дома с визуализацией в 3D — БЕСПЛАТНО!

Подарки
Система видеонаблюдения из 4 камер с выводом в любую точку, подберём и установим — БЕСПЛАТНО!

Опыт
Бригадиры с профильным высшим образованием. Бригады с опытом работы не менее 5 лет.

Видеонаблюдение
Круглосуточный онлайн доступ к наблюдению за проводимыми работами.
Площадь 1-го этажа - 249 м2
Площадь 2-го этажа - 228 м2
Площадь подвала - 200 м2
Площадь гаража - 34 м2













