
Проект дома Усадьба Санторини словно предназначен для греческого острова Санторини, который знаменит на весь мир своими белыми домиками с голубыми крышами. Представьте только: все до единого дома – белые! Живя в таком доме, легко представить себя на этом сказочном островке. Дом невелик по размерам (10 м х 13 м в плане) и достаточно прост в архитектуре – трёхъярусный прямоугольник с двускатной крышей и обычными квадратными и прямоугольными окнами. Однако благодаря изысканной цветовой гамме и нестандартным решениям декора он становится каким-то притягательно уютным, приветливым, ласковым, солнечным… Стены дома оштукатурены удивительно нежным цветом – между цветочно-белым и бледно-кремовым айвори, а в оформлении крылец с двух сторон дома использована целая золотистая симфония из близких по тону оттенков жёлтого – шампани, ванили, палевого и песочного. Очень интересными находками стали тонкие, почти незаметные хромированные поручни ограждения балконов и крылец, и вынесенная вперёд декоративная подпорка карниза, сделанная из бруса. Всё это в целом и создаёт чарующий образ усадьбы.
Фасад Санторини одновременно восхищает необыкновенной лёгкостью благодаря цветовой гамме и упомянутым элементам декора, и поражает монументальным въездом в гараж цоколя, обрамлённого пафосными мраморными плитами. Помимо гаража, цокольный этаж может похвастаться внушительной бильярдной, котельной и немаленьким хоз. помещением.
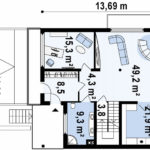
На первом этаже – прихожая с гардеробом, рабочий кабинет и развлекательно-гастрономический комплекс. В нём есть кухня, столовая и совмещённая с ней гостиная. Общая площадь этого лофта – 50 кв.м.
На втором этаже – хозяйская спальня и три спальных комнаты для детей или гостей. Во всех есть свой гардероб. В правой части холла – небольшая гостиная. В углу – просторная ванная комната с душем и санузлом. Из большой спальни есть выход на фасадный балкон.
Усадьба Санторини — дружелюбный дом с солнечного острова. Дом, который светится счастьем.

Гарантия 10 лет
На все работы действует гарантия. Вы полностью застрахованы.

Расчет ваших проектов
Рассчитаем стоимость строительства по эскизам. Составление сметы — БЕСПЛАТНО!

Большая база домов
У нас вы можете заказать проект дома, который будет разработан «под Вас» — БЕСПЛАТНО.

Отчётность
Полная финансовая отчётность. Вы можете в любой момент запросить отчётность о проводимых работах.

Проект Вашего дома в 3D
Прогуляйтесь по своему дому до начала строительства. Фасады и планировки дома с визуализацией в 3D — БЕСПЛАТНО!

Подарки
Система видеонаблюдения из 4 камер с выводом в любую точку, подберём и установим — БЕСПЛАТНО!

Опыт
Бригадиры с профильным высшим образованием. Бригады с опытом работы не менее 5 лет.

Видеонаблюдение
Круглосуточный онлайн доступ к наблюдению за проводимыми работами.
Площадь 1-го этажа - 108 м2
Площадь 2-го этажа - 122 м2
Площадь подвала - 116 м2
Площадь гаража - 44 м2












